ulteriori informazioni
canoni mensili
185 € / mese
Numero di lotti
42
Ascensore
Tapparelle elettriche
Persiane
Custode
Metropolitana
Supermercato
mer
Diagnosi delle prestazioni energetiche
C 140
Indice di emissione di gas serra
E 42
Il documento relativo ai rischi e all’inquinamento può essere consultato su https://georisques.gouv.fr
I + Winter
Winter immobilier vi accompagna passo dopo passo nel vostro progetto immobiliare
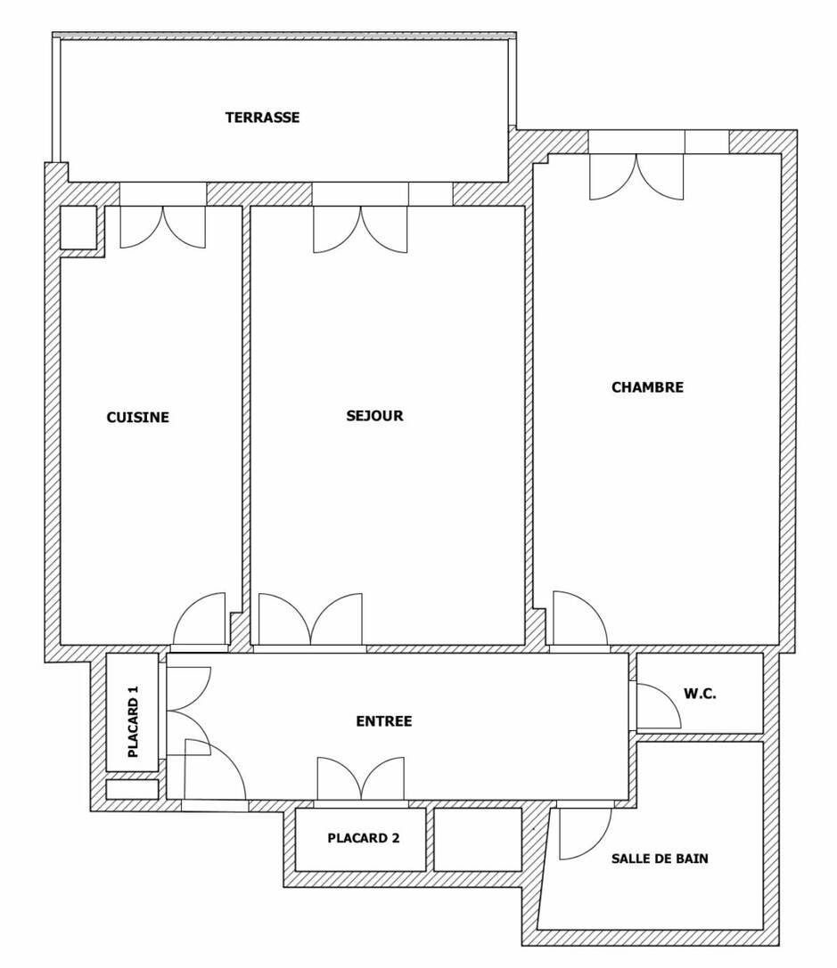
Superfice
1 Ingresso
11 m²
1 Soggiorno
19 m²
1 Camera da letto
19 m²
1 Cucina
12 m²
1 Bagno
6 m²
1 Lavatory
2 m²
1 Credenza
2 m²
1 Terrazza
10 m²
1 Balcone
10 m²
1 Cantina
4 m²
Abitazione molto efficiente.
Abitazione con consumo energetico estremamente elevato
Basse emissioni di CO2
Emissioni di CO2 molto elevate














