Nice - Fleurs Gambetta
Appartamento Nice 87,75 m²
Venduto
Vi presentiamo in Esclusività un appartamento di tipo 3 locali di 87 m2 con balcone, situato sul viale dei fiori, in un edificio sicuro ben tenuto con ascensore. Una cantina nel seminterrato incluso e possibilità di parcheggio extra.
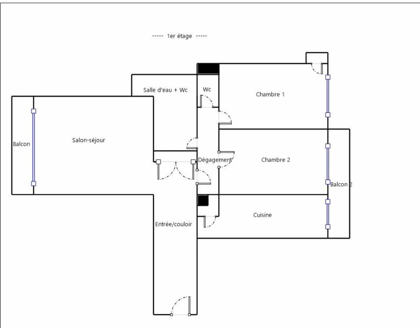
Con una superficie di 87 m2, questo appartamento completamente da rinnovare, è composto da un ingresso, un soggiorno con vista sul balcone esposto a sud (sole a intermittenza mattina e pomeriggio), un armadio, lato nord, una cucina attrezzata, due camere da letto, un bagno con WC, un WC indipendente.
Acqua fredda e riscaldamento collettivo a pavimento sono inclusi nelle spese mensili.
Vicino ai negozi di prossimità del Bd Gambetta, il tram Alsace Lorraine, e la spiaggia.
Potenziale BCP per questo appartamento con una bella superficie.
Lo stato dei rischi e dell'inquinamento può essere consultato su https://georisques.gouv.fr
ulteriori informazioni
canoni mensili
230 € / mese
Porta blindata
Video telefono
Digicode
Autobus
Negozi
Scuola elementare
Spiaggia
Centro storico
Medico
Tram
Parcheggio
Parco
Supermercato
Scuola media
Palestra
mer
Università
Diagnosi delle prestazioni energetiche
D 205
Indice di emissione di gas serra
D 49
Importo stimato della spesa energetica annuale per uso standard: tra 1.380,00 € e 1.900,00 € (prezzi energetici medi indicizzati al 1 gennaio 2021)
Il documento relativo ai rischi e all’inquinamento può essere consultato su https://georisques.gouv.fr
I + Winter
Winter immobilier vi accompagna passo dopo passo nel vostro progetto immobiliare
Superfice
1 Ingresso
13 m²
1 Corridoio
4 m²
1 Soggiorno
26 m²
1 Cucina
10 m²
1 Balcone
7 m²
1 Camera da letto
15 m²
1 Camera da letto
13 m²
1 Bagno con doccia / WC
6 m²
1 Lavatory
2 m²
1 Balcone
5 m²

Quartiere
Nice - Fleurs Gambetta
Cerchi una zona residenziale, vicino al mare ea tutti i negozi, la linea tramviaria che collega il porto all'aeroporto? Il distretto dei fiori / Gambetta è fatto per te! Approfitta anche dei tanti progetti in corso (vegetazione e pedonalizzazione) per investire nel tuo futuro!
Abitazione molto efficiente.
Abitazione con consumo energetico estremamente elevato
Basse emissioni di CO2
Emissioni di CO2 molto elevate












