Nice - Musiciens
Appartamento Nice 83,09 m²
Venduto
Al 22 di rue Verdi, in un bell'edificio degli anni '30, proponiamo la vendita di un trilocale con 3 balconi e una luce eccezionale.
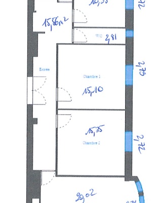
Con una superficie di 83 m², questo appartamento da ristrutturare vanta soffitti alti e carattere originale. È composto da un ampio ingresso, un soggiorno con bow window, due camere da letto di 15 m² che si aprono ciascuna su un balcone, una cucina separata con balcone, un bagno e una toilette separata.
Una cantina al piano interrato completa la proprietà.
Vicino a negozi e servizi.
ulteriori informazioni
canoni mensili
180 € / mese
Imposta patrimoniale
1 668 €
Internet
Ascensore
Citofono
Fibra ottica
Autobus
Negozi
Centro storico
Medico
Tram
Parcheggio
Supermercato
Diagnosi delle prestazioni energetiche
C 115
Indice di emissione di gas serra
C 14
Importo stimato della spesa energetica annuale per uso standard: tra 860,00 € e 1.170,00 € (prezzi energetici medi indicizzati al 1 gennaio 2021)
Il documento relativo ai rischi e all’inquinamento può essere consultato su https://georisques.gouv.fr
I + Winter
Winter immobilier vi accompagna passo dopo passo nel vostro progetto immobiliare
Superfice
1 Ingresso
16 m²
1 Bagno
4 m²
1 Cucina
10 m²
1 Lavatory
3 m²
1 Camera da letto
15 m²
1 Camera da letto
15 m²
1 Soggiorno
20 m²
1 Balcone
3 m²
1 Balcone
3 m²
1 Balcone
3 m²
1 Cantina
4 m²

Quartiere
Nice - Musiciens
Il quartiere dei musicisti o chiamato quartiere "Thiers", si trova tra Boulevard Gambetta, Avenue Jean Médecin e Boulevard Victor Hugo. Molto residenziale e frequentato dall'alta borghesia (Verdi, Berlioz), si distinguerà per Place Mozart e per l'architettura Belle Epoque degli anni '60 dell'Ottocento.
Abitazione molto efficiente.
Abitazione con consumo energetico estremamente elevato
Basse emissioni di CO2
Emissioni di CO2 molto elevate













