Nice - Fleurs Gambetta
Appartement Nice 151 m²
Vendu
Idéalement situé sur le boulevard Gambetta entre le jardin Alsace Lorraine et la place Franklin, au 3ème étage avec ascenseur d'un immeuble du début du 20ème siècle se trouve un appartement à rénover d'une surface de 151m2.
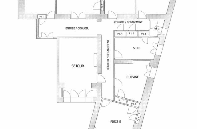
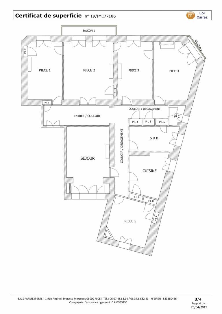
Ce beau logement aux pièces de vies agréables se compose d'une entrée, un séjour, une salle à manger, une cuisine indépendante, quatre chambres, une salle de bains (avec possibilité d'en créer une seconde), un WC indépendant (possibilité également d'en rajouter), de nombreux rangements et une grande cave en sous-sol. Les parquets d'origine, la grande hauteur sous plafond, les cheminées décoratives et les moulures d'origine renforcent l'identité de ce logement plein de charme. Enfin, sa localisation idyllique, avec une proximité de la mer (500 mètres) et de la station de l'arrêt du tramway Alsace Lorraine, se rajoutent aux prestations très appréciables de ce superbe appartement.
Informations supplémentaires
Charges mensuelles
280 € / mois
Taxe foncière
1 852 €
Internet
Cheminée
Ascenseur
Stores
Digicode
Plage
Tramway
Parc
Supermarché
Mer
Diagnostic de performance énergétique
E 254
Indice d'émission de gaz à effet de serre
C 14
L’État des risques et pollutions peut être consulté sur https://georisques.gouv.fr
Surfaces
1 Entrée
10 m²
1 Séjour
22 m²
1 Salle à manger
15 m²
1 Dégagement
13 m²
1 Chambre
15 m²
1 Chambre
16 m²
1 Toilettes
2 m²
1 Salle de bains
9 m²
1 Cuisine
12 m²
1 Chambre
14 m²
1 Salon
21 m²
4 Placards
3 m²

Quartier
Nice - Fleurs Gambetta
Vous êtes à la recherche d'un quartier résidentiel, proche de la mer et de tous commerces, de la ligne de tramway reliant le port à l'aéroport ? Le quartier des fleurs / Gambetta est fait pour vous ! Profitez également de nombreux projets en cours (végetalisation et pietonnisation) pour investir sur votre futur !
Logement très performant
Logement extrêmement consommateur d'énergie
Peu d'émission CO2
Emission de CO2 très importantes


















