Cookie Consent byPrivacyPolicies.com

Nice

Appartement Nice 198,59 m²


1 100 000 €

5 pièces

198,59 m²

4 chambres

3ème Étage

Terrasse picto - Attribut alt par défaut.

Terrasse
4,49 m²

Nous sommes ravis de vous proposer à la vente cet appartement d’exception de 5/6 pièces, traversant, d’une surface de 198 m², situé au 3ᵉ étage avec ascenseur au 4 Place Franklin à Nice.

Actuellement configuré avec quatre chambres, deux salles de bains, un vaste double séjour salle à manger et une grande cuisine séparée, cet appartement offre un excellent potentiel. À rénover entièrement, il conserve tout le charme de l’ancien — belle hauteur sous plafond, moulures, parquet, volumes généreux et une belle luminosité grâce à de nombreuses ouvertures sur l’extérieur.

Idéalement situé à proximité de l’arrêt de tramway Alsace-Lorraine, des commerces et à seulement 10 minutes à pied de la Promenade des Anglais, cet appartement bénéficie d’un emplacement privilégié pour profiter pleinement de la vie niçoise.

Informations supplémentaires


Charges mensuelles

475 € / mois

Taxe foncière

2 676 €

Internet

Ascenseur

Interphone

Porte blindée

Bus

Commerces

Plage

Centre ville

Médecin

Tramway

Parc

Supermarché

École secondaire

Mer

Diagnostic de performance énergétique

C 118

Indice d'émission de gaz à effet de serre

B 8



Montant estimé des dépenses annuelles d'énergie pour un usage standard : entre 1 890 € et 2 570 € (prix moyens des énergies indexés au 1er janvier 2021)

Les + Winter

Winter immobilier vous accompagne pas à pas dans votre projet immobilier

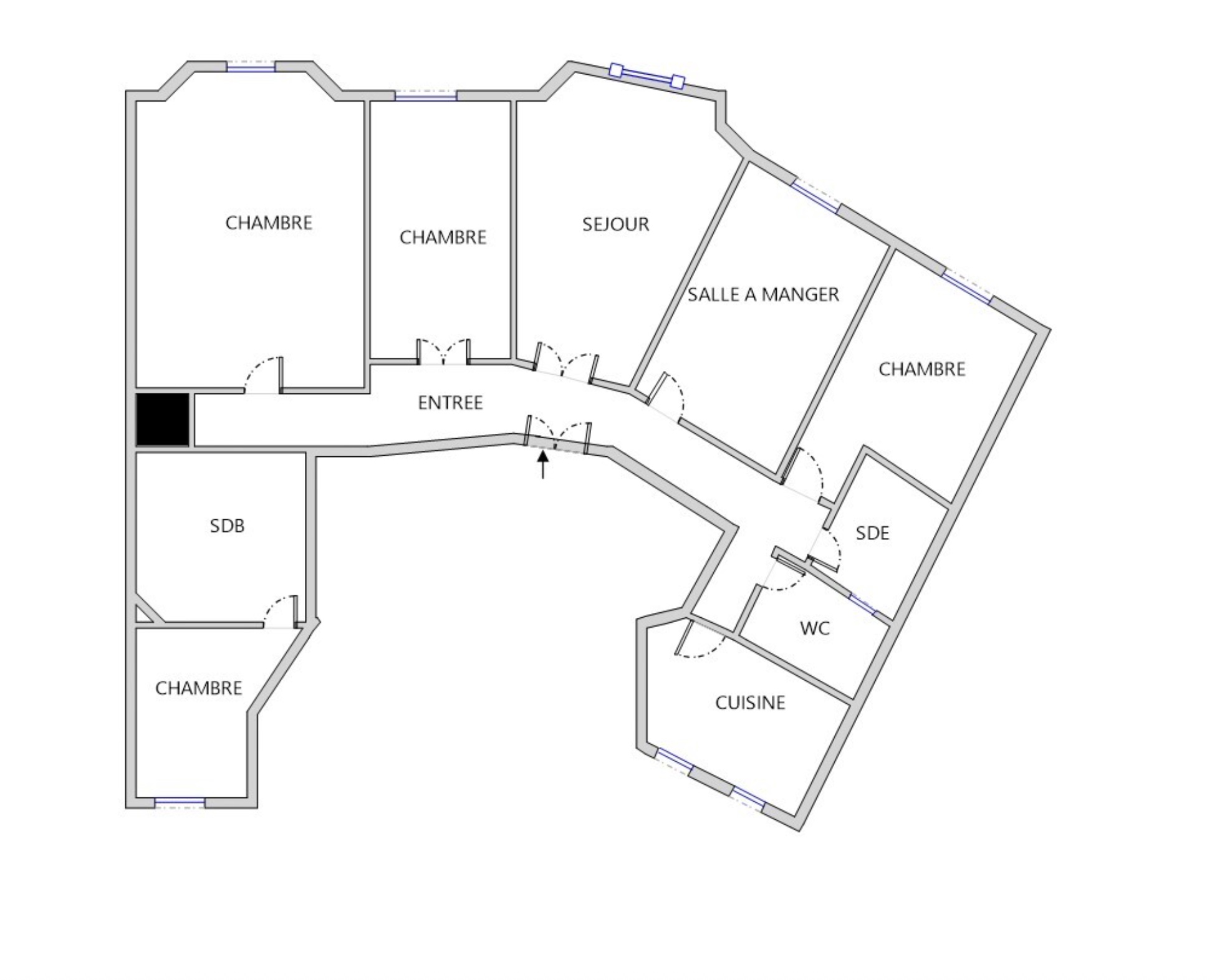
Plan du bien


Winter Immobilier - Appartement - Nice - plan

Surfaces


1 Entrée

21 m²

1 Séjour

60 m²

1 Salle à manger

20 m²

1 Chambre

21 m²

1 Chambre

15 m²

1 Chambre

9 m²

1 Chambre

20 m²

1 Salle de bains

8 m²

1 Salle de douche

4 m²

1 Toilettes

3 m²

1 Cuisine

17 m²

1 Terrasse

4 m²