Nice - Carré d'or
Appartement Nice 60,71 m²
615 000 €
Winter immobilier vous présente en exclusivité, un appartement situé au dernier étage de la résidence Le Fenice, située au 26 boulevard Gambetta et construite en 2001, un superbe 3 pièces avec terrasse, vue dégagée et aperçu mer.
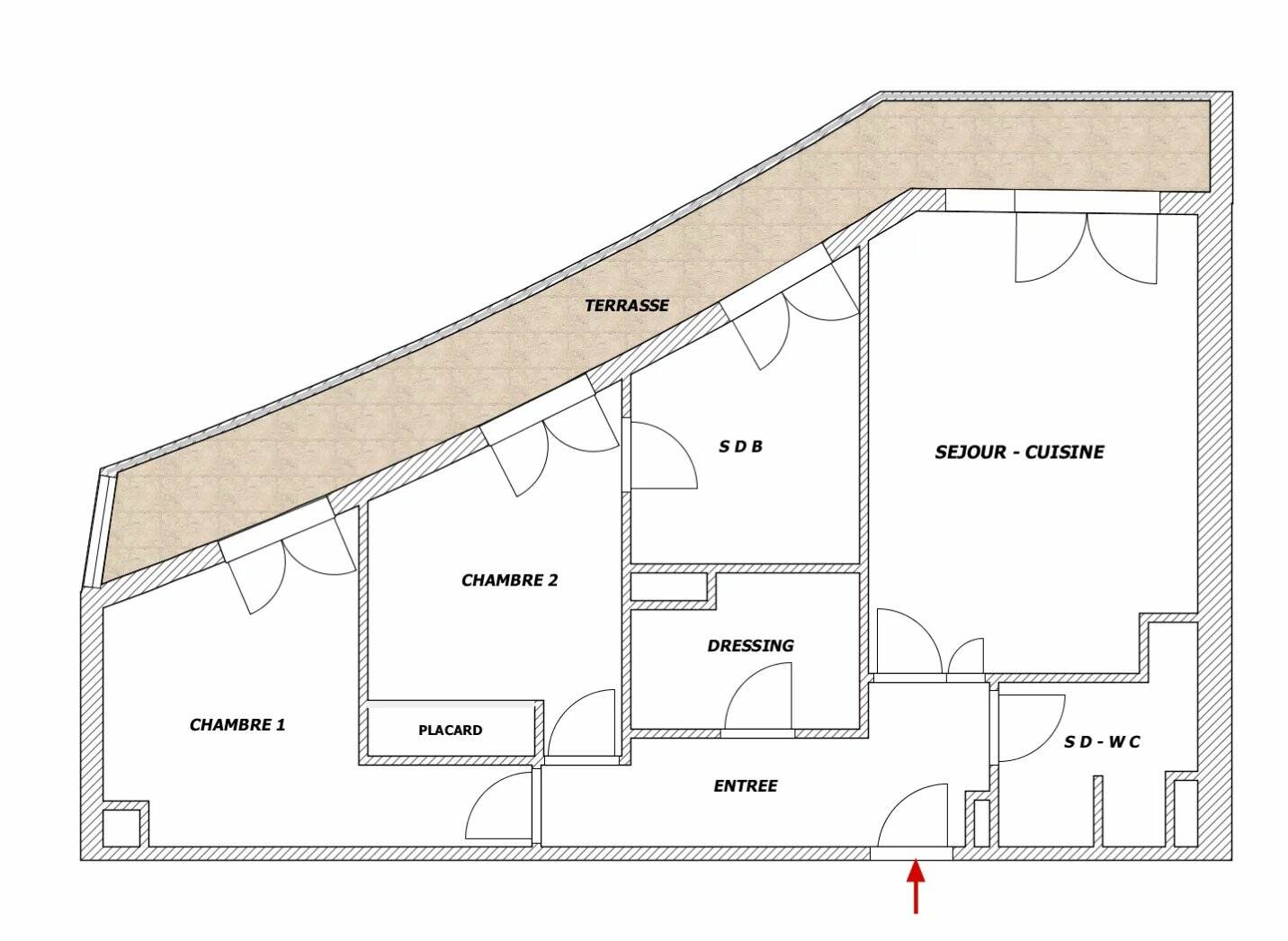
D'une surface de 60.71m2 plus une terrasse de 13.90m2 accessible depuis toutes les pièces, cet appartement se compose d'une entrée, un séjour avec cuisine, deux chambres ainsi qu'un grand dressing aménagé, une salle de bains, une salle d'eau avec WC, et deux caves en rez-de-chaussée.
Equipée de double vitrage, d'une climatisation centralisée et disposant d'une vue panoramique ville et mer, cet appartement est un pied à terre parfait pour toute personne souhaitant à la fois un confort de vie et une localisation optimale.
Informations supplémentaires
Charges mensuelles
140 € / mois
Taxe foncière
1 500 €
Accès handicapé
Air conditionné
Ascenseur
Double vitrage
Porte blindée
Volets roulants électriques
Vidéophone
Meublé
Métro
Commerces
Plage
Gare
Parc
Supermarché
Mer
Diagnostic de performance énergétique
C 179
Indice d'émission de gaz à effet de serre
A 5
Montant estimé des dépenses annuelles d'énergie pour un usage standard : entre 890 € et 1 270 € (prix moyens des énergies indexés au 1er janvier 2021)
L’État des risques et pollutions peut être consulté sur https://georisques.gouv.fr
Surfaces
1 Terrasse
14 m²
1 Entrée
6 m²
1 Chambre
11 m²
1 Chambre
9 m²
1 Placard
1 m²
1 Salle de bains
7 m²
1 Dressing
4 m²
1 Séjour/cuisine
18 m²
1 Salle de douche / toilettes
4 m²
1 Cave
3 m²
1 Cave
2 m²
Quartier
Nice - Carré d'or
Vous êtes à la recherche d'un appartement dans l'hyper-centre Niçois? A la fois proche de la Promenade des Anglais, de la Place Massena, du Negresco et du Palais de la Méditerranée, vous ne pouvez être mieux placé à Nice si vous souhaitez avoir un quartier qui bouge !
Logement très performant
Logement extrêmement consommateur d'énergie
Peu d'émission CO2
Emission de CO2 très importantes
















